产品详情:
概述
津佰电源研发的KBGY系列IT隔离供电系统,为医疗场所提供成熟、可靠、具有很高性价比的电源隔离解决方案。 隔离电源系统一般由绝缘监视仪,外接报警测试面板和隔离变压器组成,扩展名称包括:手术室隔离电源,医用隔离电源、医用IT隔离电源、医疗隔离电源、医用漏电检测仪、医用漏电流检测仪、医用绝缘检测仪、手术室绝缘检测仪 用隔离变压器以分隔非保护区域与保护区域,在隔离变压器的次级引出IT系统的电源,以防止产生接地故障电流。 广泛应用于的二类场所:各类手术室、唤醒室、重症监护室、心脏监护室等。在2类场所中每个房间必须至少配备一套医用IT隔离电源系统,内含专用隔离变压器和绝缘监视仪。
津佰电源作为中国专门的医用IT隔离电源、变压器系统配套商和系列隔离电源装置的方案提供商,提供的产品服务包括医用IT隔离电源、医用隔离电源、医用隔离变压器、绝缘监测仪、医用IT隔离电源系统、隔离供电系统远程控制系统,绝缘监控远程测试终端、电流互感器、24V专用电源等,并提供产品OEM定制服务,相关研发的产品可以全部替代国外同类产品的IT隔离电源系统(包括本德尔、施耐德、格力马等),价格上与国外产品相比具有非常明显的优势,在整体性能与本德尔同步,性价比高,其操作上符合国人操作习惯;很大的方便了产品的使用和维护。
规格型号及配置
1)ICU/CCU病房隔离电源柜
KBYGG-1系列ICU/CCU等病房用隔离电源柜 主要功能:为ICU/CCU病房提供安全可靠的IT系统隔离供电电源,并具有对IT系统绝缘监测功能。
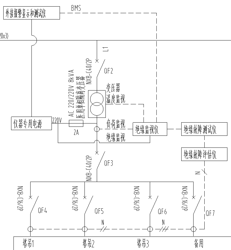
2)手术室隔离电源柜
KBYGG-2系列手术室用隔离电源柜 主要功能:为各类手术室提供安全完美的供电解决方案,为重要的手术设备提供安全可靠的IT系统隔离供电电源,并具有对IT系统绝缘监测功能。
3)医疗IT配电系统绝缘监测装置
KBITJ绝缘监测仪 主要功能:具有对被监测IT系统对地绝缘电阻、隔离变压器负荷电流、变压器绕组温度实时监测及故障报警功能;
KBITP10-24直流稳压电源 主要功能:仪表专用的直流稳压模块,导轨式安装;
KBITY报警与显示仪主要功能:具有绝缘电阻、变压负荷率实时显示功能;可远程设置绝缘监测仪的报警阀值;
KBH-0.66P26型电流互感器 主要功能:与KBITJ绝缘监测仪配套使用的保护型电流互感器。可测电流为50A,变比为2000:1。
4)隔离变压器
KBYG系列隔离变压器 主要功能:专用的隔离变压器,为各类手术室和重症监护室提供安全的电源隔离。
针对不同场合的不同解决方案
1)ICU、CCU病房配电解决方案(以KBYGG-1隔离配电柜系统图为例)
规格 配置 | KBYGG-I6.3 | KBYGG-I8 |
隔离变压器 | KBYG-6.3K | KBYG-8K |
绝缘监测仪 | KBITJ |
直流稳压电源 | KBITP10-24 |
输出回路 | IT系统:4路、8路等(可根据实际需求定制) |
电流互感器 | KBH-0.66P26 |
带短路保护的断路器 | C65H-ICB-16A/2P |
不间断电源 | 可选配置,也可外置 |
报警与显示仪 | KBITY(安装于情报面板上) |
2)手术室配电解决方案(以KBYGG-2隔离配电系统图为例)
规格 配置 | KBYGG-26.3 | KBYGG-28 |
隔离变压器 | KBYG-6.3K | KBYG-8K |
绝缘监测仪 | KBITJ |
直流稳压电源 | KBITP10-24 |
电流互感器 | KBH-0.66P26 |
带短路保护断路器 | C65H-ICB-16A/2P |
报警与显示仪 | KBITY(安装于情报面板上) |
馈电回路 | 8路AC220V |
馈电回路 | 1路AC380V、8路AC220V |
浪涌保护器 | PR20 20KA 3P+N |
多功能仪表 | Kb194E-9 |
剩余电流动作保护器 | 动作电流≤30mA(A型) |
不间断电源 | 可选配置,也可外置 |
常用电路图案例
